設計から保守まで、一貫した省エネ制御ソリューション
ビルシステム事業
施設に最適な
監視・
制御をトータル構築
SMART CONTROL
PDCAサイクルで
継続的にビル設備を最適チューニング
システム設計SYSTEM DESIGN
- 空調・電気・防犯・防災等あらゆる設備に対応
- 設備ごとに最適制御システムを構築
施工・試運転調整CONSTRUCTION / TRIAL OPERATION
- 工事種別ごとに有資格者による施工管理
- 建物の運用にあわせた安心安全な施工計画
- 制御により設備性能を発揮させる試運転調整
メンテナンスMAINTENANCE
- 快適な執務環境を維持する制御チューニング
- 故障・トラブル発生時の迅速な対応
- 中長期保全計画にもとづく性能維持
リニューアル・
ソリューション提案PROPOSAL
- 老朽化機器の計画的な更新提案
- 省エネ・利便性等を考慮した付加価値提案
- 中央監視の蓄積データを活用した運用改善提案
- 建物全体エネルギーの削減につながるソリューション提案
システム設計・計画
SYSTEM DESIGN
空調・電気・防犯・防災等の設備の用途や規模や予算に合わせ、中央監視システムと自動制御機器をコーディネイトし最適な監視制御システムを構築します。
受変電設備・動力盤・防犯システム・防災システムの設計にも対応します。



施工・試運転調整
CONSTRUCTION /TRIAL OPERATION
電気工事・計装工事・管工事等の工事種別ごとに必要な有資格者の配置を行います。
既設改修工事では建物を運用しながらの工事となるので安心安全な施工計画を立案します。
試運転調整は制御対象設備の性能を発揮させるよう、最適チューニングを行います。



メンテナンス
MAINTENANCE中央監視・自動制御・セキュリティ等のシステム納入後、年間保守契約を締結していただいたお客様にメンテナンスサービスをご提供します。
制御システムが正確に作動し快適な執務環境を維持するすることはもちろん、計測誤差のキャリブレーションを定期的に行い制御のロスを無くする事や、制御パラメータの見直しによる最適チューニングも継続的に実施し省エネルギーに貢献します。
また、お客様の契約対象設備に故障・トラブルが発生した時は迅速に復旧処置を行います。このような偶発故障を予防するために、予防保全を前提とした整備計画をご提案します。
具体的には機器の設計寿命や稼働時間による摩耗・劣化等を考慮した機器の部品交換やオーバーホールを5年~10年単位で行う中長期計画をもとに運用します。
メンテナンスサービス
- 年間保守契約
-
契約対象機器 - 外観・機能チェック
- 制御作動確認
- 誤差チェック
- パラメーター調整(チューニング)
- 故障時の緊急対応
- リモートメンテナンス
- 付加価値提案
-
中長期計画
- 部品交換
- オーバーホール
- 機器本体の交換
省エネルギー提案
- メンテナンス効果
-
- 快適な執務環境(空調制御)
- 安定した熱供給(熱源制御)
- 省エネルギー効果
- 故障が少なく安心・安全
- 計画的整備(予算の平準化)
リニューアル・
ソリューション提案
PROPOSAL
リニューアル提案
自動制御機器や中央監視システムにも更新が必要となるタイミングがあり、概ね10年~15年を目安にリニューアル提案(全体更新計画)を立案します。
リニューアルは基本的には旧タイプから最新機種への更新を前提に機能や性能及び利便性の向上など更新によるメリットと更新コストのバランスを考慮して計画します。
予算化されるとリニューアル設計として、再度システム設計へ廻ります。
ソリューション提案
設備の更新時期を意識しない運用改善型や設備付加型(INV等)と設備更新型(ESCO含む)があり、どちらにも対応します。
BEMSや中央監視システムに蓄積されたデータを分析し現状の運転状況やエネルギー消費実態を把握したうえで、お客様の課題や困り事を抽出しお客様に最もメリットがある解決策を検討します。
提案内容や規模により環境ソリューション事業部と連携して対応します。
保守整備による更新時期の延長と、リニューアル・ソリューション提案のタイミング
最新技術と既存技術の融合により
高い信頼性と省エネ・省CO2を両立
データ収集・活用
ビルのさまざまなデータを、中央監視装置に蓄積。
データを分析し、省エネ活動のPDCA に活用。
最新の中央監視システム
アズビル社のsavic-netTMG5建物の省エネ・省CO2を実現する、ビルディングオートメーションシステムを導入し、データ分析・活用を行います。

システム構築
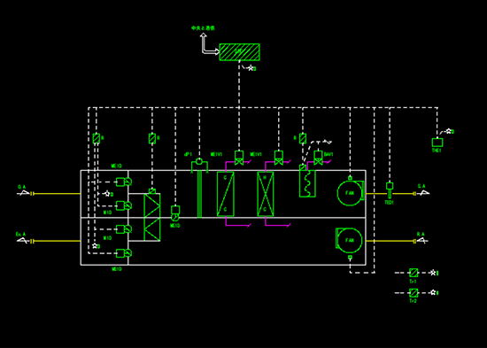
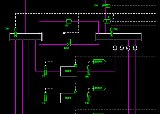
あらゆる設備に自動制御機器を組み合わせ、最適なシステムを構築。
これまでの納入実績
多くの企業様にシステムを納入させていただいております。
納入実績一覧を見る- savic-net、BOSS-24、ACTIVAL、ネオセンサ、ネオパネルは、アズビル株式会社の商標です。
- BACnetは、ASHRAEの商標です。
- ETHERNETは、富士ゼロックス株式会社の日本または他の国における商標です。
- Modbus is a trademark and the property of Schneider Electric SE, its subsidiaries and affiliated companies